Πίσω στο blog
Μίνιμαλ βίλλα στο Κάστελο Αποκορόνου
Δημοσιεύθηκε στις: 26 February, 2026


Μίνιμαλ βίλλα στο Κάστελο Αποκορόνου
Η κατασκευή της βίλας θα ξεκινήσει άμεσα και θα ολοκληρωθεί σε μόλις 10 μήνες, προσφέροντας ταχύτητα υλοποίησης χωρίς καμία έκπτωση στην ποιότητα. Η κατοικία έχει σχεδιαστεί εξ ολοκλήρου κατ’ απαίτηση των πελατών, καλύπτοντας πλήρως όλες τις ανάγκες και τις επιθυμίες τους, με έμφαση στη λειτουργικότητα και την άνεση για μόνιμη κατοικία.
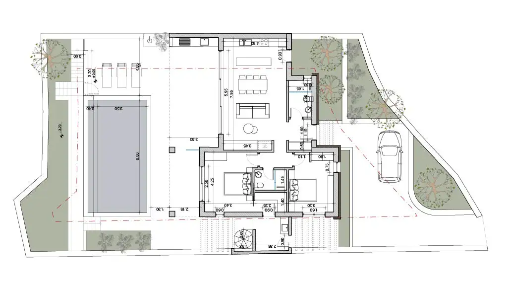
Η βίλα έχει συνολικό εμβαδόν 110 τ.μ. και διαθέτει 2 άνετα υπνοδωμάτια, 2 σύγχρονα μπάνια, καθώς και ενιαίο χώρο σαλονιού με κουζίνα, δημιουργώντας ένα φωτεινό και φιλόξενο περιβάλλον. Περιλαμβάνει επίσης αποθηκευτικό χώρο και ανεξάρτητο μηχανοστάσιο 21 τ.μ., καλύπτοντας κάθε πρακτική ανάγκη.
Στον εξωτερικό χώρο, η ιδιωτική πισίνα 28 τ.μ. σε συνδυασμό με τις μεγάλες βεράντες προσφέρουν απρόσκοπτη θέα προς τη θάλασσα και τα βουνά, δημιουργώντας ένα μοναδικό περιβάλλον χαλάρωσης και καθημερινής απόλαυσης.
Ιδανική επιλογή για:
βίλα για μόνιμη κατοικία Κρήτη, νεόδμητη βίλα Αποκόρωνας, κατοικία με θέα θάλασσα και βουνά, σύγχρονη βίλα με πισίνα, real estate Χανιά, επενδυτική κατοικία υψηλών προδιαγραφών.
Ένα έργο που συνδυάζει σύγχρονο σχεδιασμό, εξατομίκευση και υψηλή ποιότητα κατασκευής, σε μία από τις πιο όμορφες περιοχές της Κρήτης.
Βασικά Χαρακτηριστικά
-Συνολική επιφάνεια οικοπέδου 480m2.
-Συνολική επιφάνεια πισίνας 28m2.
-Συνολική επιφάνεια σπιτιού 110m2.
-Συνολική επιφάνεια μηχανοστάσιου 21m2.
-Χρόνος αποπεράτωσης 10 μήνες.
3d
Από το όραμα στην ψηφιακή τελειότητα. Μια λεπτομερής 3D προσομοίωση της Βίλας, που αναδεικνύει την αρμονία των υλικών, το φυσικό φως και τον πρωτοποριακό σχεδιασμό της Aslanidis Villas.








