Πίσω στο blog
Μίνιμαλ βίλλα στο Κάστελο Αποκορώνου.
Δημοσιεύθηκε στις: 27 March, 2026


Μίνιμαλ βίλλα στο Κάστελο Αποκορώνου.
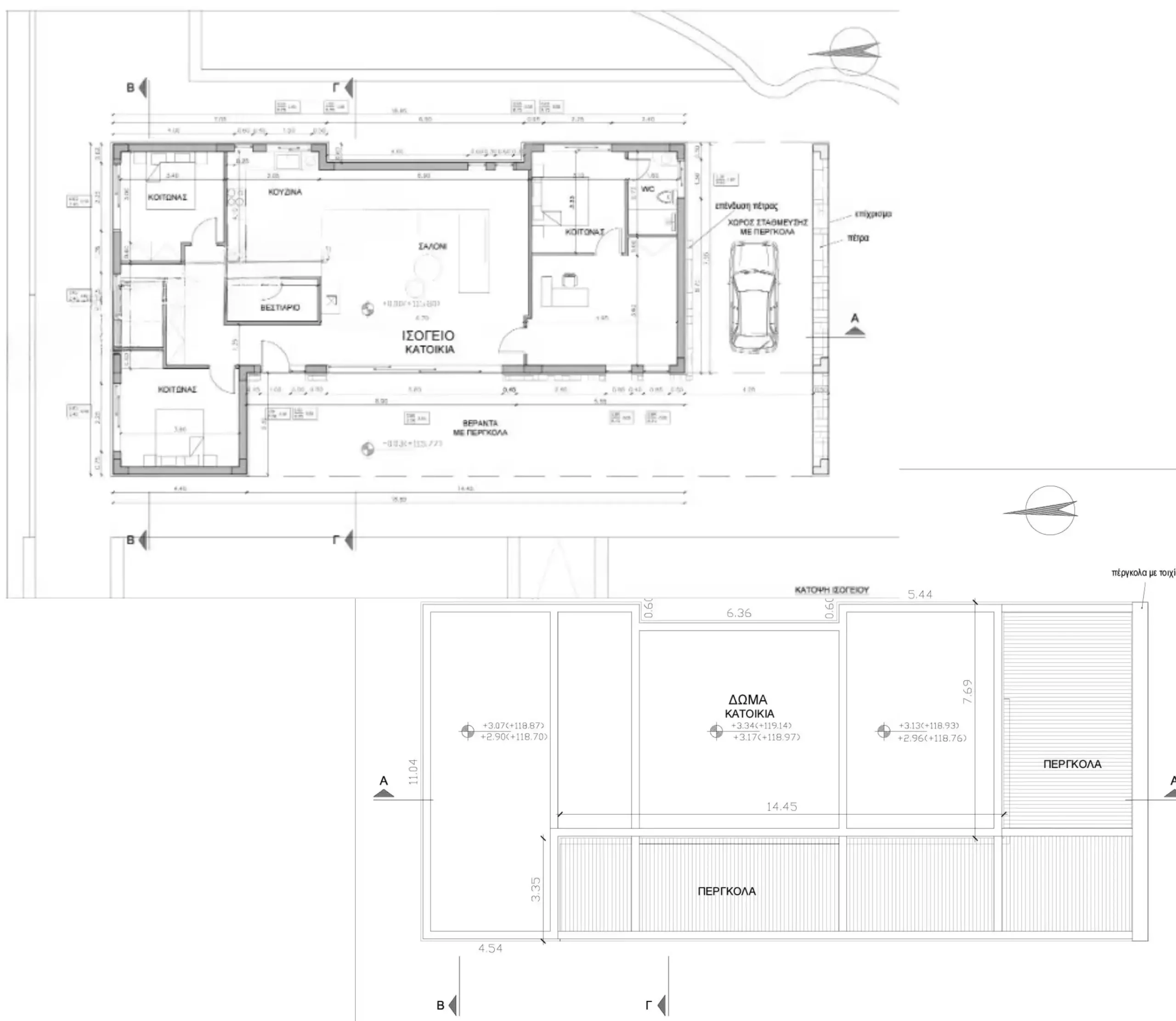
Η βίλα έχει συνολικό εμβαδόν 152 τ.μ. και εντυπωσιάζει με τον σύγχρονο, μίνιμαλ σχεδιασμό της. Διαθέτει ενιαίο χώρο σαλονιού με κουζίνα, αποθήκη 10 τ.μ., τρία ευρύχωρα υπνοδωμάτια, γραφείο και δύο μπάνια με ευρύχωρες ντουζιερες, προσφέροντας άνεση και λειτουργικότητα σε κάθε γωνιά της κατοικίας.
Στον εξωτερικό χώρο ξεχωρίζει η ιδιωτική πισίνα 12×3,5 μ., ιδανική για στιγμές χαλάρωσης, ενώ οι μεγάλες βεράντες και οι ανοιχτοί χώροι προσφέρουν πανοραμική θέα προς τη θάλασσα και τα γύρω βουνά, δημιουργώντας ένα μοναδικό σκηνικό που συνδυάζει πολυτέλεια και φύση.
Ιδανική επιλογή για όσους αναζητούν:
νεόδμητη πολυτελή βίλα Κρήτη, βίλα με θέα θάλασσα, μίνιμαλ βίλα με πισίνα, εξοχική κατοικία σε ελαιώνα, επενδυτική κατοικία Χανιά, premium villa προς πώληση.
Μια μοναδική ευκαιρία για απόκτηση μιας βίλας που συνδυάζει minimal design, υψηλή ποιότητα κατασκευής και απαράμιλλη φυσική ομορφιά.
Η Κατασκευαστικη Ασλανιδης συνδυάζει design, άνεση και απαράμιλλη φυσική ομορφιά σε καθε τι που φτιαχνει, στις πιο προσιτες τιμες της αγορας.
Τιμή Πώλησης: 780.000€
Βασικά Χαρακτηριστικά
-Συνολική επιφάνεια οικοπέδου 4.200m2.
-Συνολική επιφάνεια πισίνας 42m2.
-Συνολική επιφάνεια σπιτιού 152m2.
-Συνολική επιφάνεια μηχανοστάσιου 10m2.
-Χρόνος αποπεράτωσης 11 μήνες.
3d
Από το όραμα στην ψηφιακή τελειότητα. Μια λεπτομερής 3D προσομοίωση της Βίλας, που αναδεικνύει την αρμονία των υλικών, το φυσικό φως και τον πρωτοποριακό σχεδιασμό της Aslanidis Villas.












